Wohnen im beliebten STEPHANKIEZ + klassischer 3-Zi Stuckaltbau im 3. OG + BEZUGSFREI ! ....
Eckdaten
Etagenwohnung / Kauf
Kennung:
ETW-3-107-N
Quitzowstr. 117
10559 Berlin / Moabit
Preise
Flächen
Ausstattung
Zustandsangaben
Umfeld
Verwaltung
Energieausweis
Beschreibung der Lage
Der "Stephankiez" hat sich mit seiner Nähe zum Regierungsviertel
Mitte/Tiergarten als auch mit seinen liebevoll sanierten Gründerzeit-
Altbauten, seinen Cafés, Restaurants, kleinen Läden und Kultureinrichtungen
zu einer beliebten Wohngegend entwickelt mit optimaler Anbindung an
das öffentl. Verkehrsnetz und dem nahegelegenen Hauptbahnhof.
Geschäfte des tgl. Bedarfs, Schulen und Kitas befinden sich im nahen Umfeld.
In fußläufiger Entfernung erreicht man den kleinen aber feinen Fritz-Schloß
Park mit div. Sport-/Spiel- und Erholungsmöglichkeiten.
Beschreibung der Ausstattung
Familienfreundliches WOHNEN im beliebten STEPHANKIEZ
QUITZOWSTR. 117 / Ecke Havelberger Str.
Klassischer 5-geschossiger Berliner Altbau Bj. ca. 1902 mit insgesamt 12 Wohneinheiten
Ab ca. Oktober BEZUGSFREIE, sehr helle 3-Zimmer- Wohnung im 3. OG ohne Aufzug
ca. 107 qm
Die Wohnung wurde bislang als nur selten bewohnte Zweit-Wohnung
der Eigentümer genutzt und befindet sich daher in bestens erhaltenem
Zustand - ein Einzug könnte ohne großen Renovierungsaufwand
schnellstens erfolgen!
Großzügige hohe Räume mit teilw. noch den typischen Altbauelementen wie
Original-Stuckdecken oder klassische Flügeltüren mit aufgearbeiteten
Original-Türgriffen
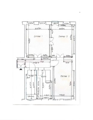
Wohnungsaufteilung s. beigefügten Grundriß:
- großzügiger Flurbereich
- 2 helle Zimmer zur Straßenseite mit französischem Balkon
und großer Flügeltür verbunden
- 1 (Schlaf-)Zimmer zur ruhigen Hofseite mit schönem
Baumbestand
- moderne, bestens gepflegte Einbauküche inkl. aller E-Geräte,
mit Platz für gemütlichen Eßtisch
- top saniertes tagesbelichtetes Wannenbad
Ob für Singles, junge Paare, kleine Familie oder WG:
idealer Grundriß, da alle Räume im Bedarfsfall auch separat begehbar sind!
Beheizt wird die Wohnung mit moderner Gastherme. Die Heizkosten werden direkt
mit der GASAG abgerechnet und betragen derzeit ca. € 100,--
Ein Kellerverschlag gehört zur Wohnung.
Größere Renovierungen sind derzeit nicht geplant und nicht erforderlich!
Das Treppenhaus wurde gerade erneuert und befindet sich in bestens
gepflegtem Zustand!
Das Dach wurde in 2022 erneuert.
BESICHTIGUNGEN sind ab sofort möglich!
Gern können Sie uns auch zu weiteren Informationen anrufen:
CRAMER IMMOBILIEN
Tel: 030-826 1070 oder 0172-3018 333
mail:
info@cramerimmobilien.de
Weitere Informationen
Alle hier gemachten Angaben beruhen auf den Auskünften der Verkäufer
für die wir keine Haftung übernehemen können.
Angaben zum Datenschutz, Impressum etc. siehe unsere Homepage
www.cramerimmobilien.de
Fotos




















Ingrid und Andreas Cramer
Immobilienmakler
Cunostr. 64
D-14193 Berlin



















