Sesenheimer-/Schillerstr. - freundliche Laden-/Bürofläche - 67 qm zzgl. 32 qm Lagerkeller ... vermietet ...
Eckdaten
Büro-/ Geschäftslokal / Miete
Kennung:
GE-67-Sesen
Sesenheimer Str. 16
12247 Berlin / Charlottenburg
Preise
Flächen
Ausstattung
Zustandsangaben
Umfeld
Verwaltung
Energieausweis
Beschreibung der Lage
Sesenheimer Str. 16- Ecke Schillerstrasse
Nur ein Steinwurf zur Fussgängerzone Wilmersdorfer Strasse
Gegenüber U-Bahnhof Deutsche Oper!
Beschreibung der Ausstattung
GASTRONOMIE / IMBISS / CAFE etc. NICHT GESTATTET!
Sesenheimer- / Ecke Schillerstr.
gleich "um die Ecke" der Wilmersdorfer Str (Fußgängerzone) und des beliebten
"Karl-August Platz" mit seinem bekannten Wochenmarkt
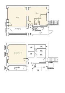
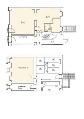
- freundliche, helle Laden-/Bürofläche
- 2 offene, ineinander übergehende Räume
- s. Grundriß -
- Platz für Küchenzeile
- modernes WC
- Laminatfußboden
- zzgl. ca. 32 qm gefliester, gut nutzbarer
Lagerkeller
- Kaltmiete: € 1.270,--
Nebenkosten: € 190,--
Warmmiete: € 1.460,-- zzgl. MwSt
- Kaution: 3 Kaltmieten
- Provision: 2 Kaltmieten zzgl. MwSt
Weitere Informationen / BESICHTIGUNGEN gern möglich!
Rufen Sie uns an:
CRAMER IMMOBILIEN
TEl: 826 1070
oder per mail:
info@cramerimmobilien.de
Weitere Informationen
Bitte beachten Sie diesen Hinweis zum Datenschutz!
Unsere Datenschutzrichtline und AGB's können Sie auf unserer Homepage unter www.cramerimmobilien.de einsehen.
Wenn Sie Informationen bei uns anfordern, erklären Sie sich damit einverstanden, dass wir Ihre Daten verarbeiten
dürfen, da wir ansonsten nicht in der Lage sind, Ihnen die abgefragten Informationen zu übermitteln.
Wir bitten um Beachtung!
Fotos












Ingrid und Andreas Cramer
Immobilienmakler
Cunostr. 64
D-14193 Berlin











