Frankfurter Tor - einzigartiges Baudenkmal Karl-Marx Allee - vermietete 4,5 Zi. + 2. OG + Aufzug ...
Eckdaten
Etagenwohnung / Kauf
Kennung:
FT-149,3-4,5-verm.
Frankfurter Tor 1
10243 Berlin / Friedrichshain
Preise
Flächen
Ausstattung
Zustandsangaben
Umfeld
Verwaltung
Energieausweis
Beschreibung im Detail
Zitat des renommierten Architekten und Baumeister ALDO ROSSI (u..a. Potsdamer Platz):
"Die Karl-Marx Allee ist als große urbane Stadt angelegt, geprägt von Säulengängen und stilistischen Elementen von bemerkenswerter Qualität"
weitere Informationen gern auf Anfrage:
CRAMER IMMOBILIEN
Tel: 49-30-826 1070
oder per Mail:
info@cramerimmobilien.de
Beschreibung der Lage
Top Innenstadtlage Friedrichshain, sehr gut erreichbar direkt am Frankfurter Tor.
U-Bahn direkt vor der Tür. Nur ein Steinwurf zum Alexanderplatz.
Beschreibung der Ausstattung
Eigentumswohnung am Prachtboulevard
KARL-MARX ALLEE
Direkt am "Frankfurter Tor" gelegen!
WOHNEN in einem einzigartigen architektonischen Baudenkmal-Juwel
aus 1953 - im sog. "Petersburger Stil" mit imposantem Entrée
Vollständige durchgreifende Sanierung des Gesamtobjektes ab 1992
nach Vorgaben des DENKMALSCHUTZES !
Diese Wohnung ist als Kapitalanlage hervorragend geeignet und befindet sich in sehr gutem Bestandszustand,
und ist vermietet!
Eigenbedarf ist nur bei Einigung mit der Mieterin möglich!
Die Mieterin hat ggf. ein Vorkaufsrecht an dieser Wohnung.
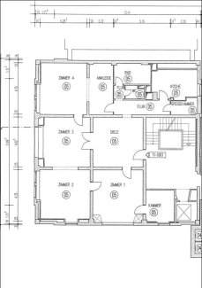
- 4,5 Zimmer Wohnung
- gut nutzbare großzügige
Empfangsdiele
- im hohen 2. OG von 10 Stockwerken
- mit ebenerdigem Aufzug
- große, sonnige Wohnung mit
sehr schönem Rundumblick im
Turmbau gelegen!
- großzügige Räume mit viel Stellfläche
- geräumige Küche mit Platz für
Esstisch
- weiß gefliestes Wannenbad
- Gäste-WC
- mit dem Denkmalschutz abgestimmte
schallisolierte Holzfenster
- sehr repräsentativ geschnitten
- schönes gut erhaltenes Parkett in den Wohnräumen
- Diverse Original-Einbauten wie Heizkörper verkleidungen etv. sind noch
vorhanden.
- Ein Keller gehört zur Wohnung
(Sondereigentum)
- Fernwärme - Zentralheizung
- Das mtl. Wohngeld (warm) beträgt aktuell 638,11 € warm inkl. Instandhaltungsrücklage
- Die jährliche Bruttomiete (inkl.
Betriebskosten) beträgt € 20.147,88
- zusätzlicher Ertrag durch
Eigentumsanteil an Gewerbe- und
Lagerräumen.
- alle öffentlichen Verkehrsmittel in
unmittelbarer Umgebung U-Bahn
Frankfurter Tor direkt vor der Tür
BEI DEN ABGEBILDETEN FOTOS HANDELT ES SICH UM BEISPIELFOTOS EINER vergleichbaren WOHNUNG !
Besichtigungen NUR in Abstimmung mit der Mieterin sind möglich.
Auskünfte zum bestehenden Mietvertrag und weitere Auskünfte über
cramer-gbr@t-online.de oder
Tel.: 030 8261637
Weitere Informationen
Dieses Angebot basiert auf der Geschäftsgrundlage unserer AGB's
die über unsere Homepage eingesehen werden kann.
Dieses Angebot basiert auf der Geschäftsgrundlage unserer AGB's
die über unsere Homepage eingesehen werden kann.
Dieses Angebot wurde nach besten Wissen erstellt.
Alle Aussagen zum angebotenen Objekt basieren auf Aussagen der
Verkäuferseite für die wir keine Haftung übernehmen können.
Bitte beachten Sie diesen Hinweis zum Datenschutz!
Unsere Datenschutzrichtline können Sie auf unserer Homepage unter
www.cramerimmobilien.de einsehen oder bei uns abfragen. Wenn Sie
Informationen bei uns anfordern, erklären Sie sich damit einverstanden,
dass wir Ihre Daten verarbeiten dürfen, da wir Ihnen ansonsten die
abgefragten Informationen nicht übermitteln können.
Weitere Einzelheiten zu den Angeboten gern auf Anfrage.
Kontaktdaten siehe Homepage
www.cramerimmobilien.de
Fotos















Ingrid und Andreas Cramer
Immobilienmakler
Cunostr. 64
D-14193 Berlin














